Transformador de Potencia Principal 10 kVA-33/33 kV|Sudáfrica 2025
Capacidad: 10MVA
Voltaje: 33/33kV
Característica: +8*2,5%, -8*2,5%@lado principal

Principales soluciones de transformadores de potencia para minería, energía hidroeléctrica y energías renovables
01 generales
1.1 Descripción del proyecto
Gracias a nuestro cliente de Sudáfrica por su continua confianza. Después del primer pedido en 2019, han vuelto a elegir nuestro transformador de potencia principal de 10MVA 33/33kV para su proyecto de subestación minera. Este transformador de 10000 kVA se utiliza en la subestación de una empresa minera. Debido al voltaje de línea inestable de 33 kV de la red eléctrica local, a menudo salta de 26 kV a 40 kV, por lo que diseñamos este transformador cambiador de tomas de carga-carga-, ±8×2,5 % (total ±20 %) de rango muy amplio de regulación de voltaje para ajustar el voltaje primario y obtener un voltaje de salida estable de 33 kV.
Si se trata de inestabilidad de la tensión de la red causada por una red antigua, una infraestructura deficiente, un gran radio de suministro o una capacidad deficiente de regulación de la red. Un transformador de igual-voltaje, como un modelo de 33/33 kV, 22/22 kV o 11/11 kV con un rango de fluctuación de voltaje de ±16 % a ±20 %, puede ser su solución ideal.
Los transformadores de igual-voltaje se utilizan principalmente para regular el voltaje. Es ideal para aplicaciones como operaciones mineras, transmisión de larga-distancia de centrales hidroeléctricas, proyectos de oleoductos y gasoductos, suministro de energía trans-regional y conexión a redes de energía renovable, donde la calidad confiable de la energía es fundamental.
1.2 Especificaciones técnicas
Especificaciones y hoja de datos del transformador de potencia principal de 10MVA
|
Entregado a
Sudáfrica
|
|
Año
2025
|
|
Tipo
Transformador de potencia sumergido en aceite
|
|
Estándar
CEI 60076
|
|
Potencia nominal
10 MVA
|
|
Frecuencia
50HZ
|
|
Fase
3
|
|
Tipo de enfriamiento
ONÁN
|
|
Voltaje primario
33 kilovoltios
|
|
voltaje secundario
33 kilovoltios
|
|
Material de bobinado
Cobre
|
|
desplazamiento angular
YNyn0
|
|
Impedancia
7%
|
|
Cambiador de toques
OLTC
|
|
Rango de golpeteo
+8*2,5%, -8*2,5%@lado primario
|
|
Sin pérdida de carga
8,5 kilovatios
|
|
En pérdida de carga
72 kilovatios
|
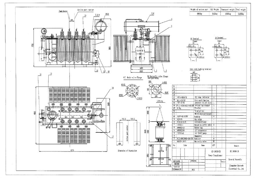
1.3 Dibujos
Dimensiones y detalles de peso del transformador de potencia principal de 10MVA
![]() |
![]() |
02 Fabricación
2.1 Núcleo
El núcleo del transformador de potencia es un componente clave del transformador de potencia y actúa como una ruta magnética para facilitar la transferencia de energía entre el devanado primario y el devanado secundario. Este núcleo de transformador de potencia de 10MVA-33/33kV generalmente está construido con láminas de acero de silicio de grano orientado de alta-calidad, con una pérdida sin carga de solo 8,5 kW, lo que minimiza la pérdida de energía con la máxima densidad de flujo magnético.

2.2 Devanado
El devanado de disco continuo es un tipo de devanado de disco que se enrolla con un conductor de cobre plano y consta de varias bobinas redondas en forma de panqueque-. El bobinado continuo evita múltiples uniones y mejora la estabilidad a largo plazo-del transformador. Los materiales de devanado de cobre de alta-calidad pueden reducir eficazmente la pérdida de carga del devanado y mejorar la eficiencia del transformador.


2.3 Tanque

El transformador está equipado con un eficiente sistema de refrigeración ONAN, complementado con aceite mineral de alta-calidad y sin PCB, lo que garantiza un funcionamiento seguro y respetuoso con el medio ambiente. Para mejorar la disipación de calor, se instalan cuatro juegos de radiadores tipo placa-a cada lado del transformador.
2.4 Asamblea Final
1. La parte activa del transformador en la imagen ha sido ensamblada y el probador está realizando pruebas de rendimiento eléctrico de rutina.
2. La parte activa se está elevando al tanque.
3. Instale otras piezas: indicador de temperatura del aceite, válvula de alivio de presión, indicador de nivel de aceite, relé de gas, respiradero, terminal de conexión a tierra, caja de terminales, base deslizante (adecuada para cimientos tipo guía deslizante o estructura montada sobre patines).
4. Vierta aceite aislante en el tanque del transformador para llenar el espacio interno del transformador y garantizar que el nivel de aceite cumpla con los requisitos.
5. Debido a la gran superficie que ocupa el radiador, se montará antes de la prueba y luego se desmontará y embalará para su transporte después de la prueba.

03 Pruebas


Pruebas de rutina y estándar de pruebas
IEC 60076-1-2011, Transformadores de potencia - Parte 1: Generalidades
IEC 60076-3-2013, Transformadores de potencia, Parte 3: Niveles de aislamiento, dieléctrico
Pruebas y holguras exteriores en aire.
IEC 60076-7-2018, Transformadores de potencia- Parte 7 Guía de carga para transformadores de potencia sumergidos en aceite mineral
1. Medición de gases disueltos en líquido dieléctrico de cada compartimento de aceite independiente, excepto el compartimento del interruptor desviador.
2. Medición de la relación de voltaje y verificación del desplazamiento de fase
3. Medición de la resistencia del devanado
4. Medición de la resistencia de aislamiento de CC entre cada devanado a tierra y entre devanados
5. Medición de la resistencia del aislamiento del núcleo
6. Prueba de voltaje aplicado
7. Medición de pérdida de carga y corriente sin-
8. Prueba de voltaje inducido
9. Medición de la impedancia de cortocircuito-y la pérdida de carga
10. Pruebas de fugas con presión para transformadores-sumergidos en líquido
04 Embalaje y envío
4.1 Embalaje

4.2 Envío

05 Sitio y resumen
¿Por qué elegir transformadores de igual-voltaje?
Estamos orgullosos de suministrar transformadores de igual-voltaje a nuestros clientes en Sudáfrica nuevamente en 2025. Los transformadores de igual-voltaje son ideales para áreas mineras remotas donde las fluctuaciones de voltaje y los largos radios de suministro de energía son comunes. El uso de transformadores de igual-voltaje puede mantener el equipo funcionando de manera estable y reducir el tiempo de inactividad. También son adecuados la transmisión de energía hidroeléctrica, los proyectos de oleoductos y gasoductos, la integración de la red de energía renovable y muchos más.
Scotech invierte mucho dinero en investigación y desarrollo de transformadores cada año para mejorar el rendimiento, la eficiencia y la adaptabilidad del producto. Podemos personalizar una variedad de transformadores diferentes según sus necesidades.

Etiqueta: transformador de potencia principal, fabricante, proveedor, precio, costo
You Might Also Like
Transformador montado en pedestal de 1250 kVA - 12,4...
Transformador de 3150 kVA en sistema de energía-0,4/...
Transformador Elevador de Potencia de 15 MVA-4.16/69...
Transformadores de potencia personalizados de 3000 k...
Transformador de Potencia Pequeño 8 MVA-33/33 kV|Zim...
Transformador de Potencia Trifásico 6 MVA-33/6,6 kV|...
Envíeconsulta












